Holiday cottages > Czech Republic > Jesenik Mountains and Oder Hills > cottage no. 2M-337
Jesenická chalupa - jezírko s molem - Suchý vrch Jesenik Mountains and Oder Hills
„Rent a designer cottage in the heart of the Jeseníky Mountains“
Chalupa - Vrbno pod Pradědem
Cottage capacity: 7 persons
- 3 bedrooms: 1x 3, 2x 2
- Bathroom: 1
- Toilet: 1
- Internet: YES
- Pet: NO - not allowed
- The owner of the building (reception): NO
- The landlord speaks: czech, slovak, english, german
Owner: Kudela Rudolf
+420 732 view contacts on owners
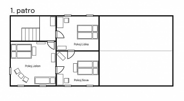
Exceptional accommodation in the heart of the Jeseníky Mountains - Rent a designer cottage - gamekeeper's lodge in the very heart of the Jeseníky Mountains, in Vrbno pod Pradědem. The cottage can accommodate up to 7 people in 3 bedrooms. At the cottage, there is a relaxing swing, a pond with a pier and trout, historic stone walls, a fireplace for špekáček. All this just a few steps from the forest hiding another adventure full of rocks and views. DESCRIPTION: Three cozy bedrooms with a capacity of up to 7 people. Spacious living room with a fireplace, a fully equipped kitchen and a stylish forester's bar. In addition, a garden full of opportunities for relaxation and entertainment. Jelen Room - for three people. Relaxation area with armchairs, a table and a lamp. Storage space for suitcases and clothes. In the morning, you will be woken up by the rays of sunlight through the tall spruce trees by the gamekeeper's lodge. This is the largest room in the gamekeeper's room, which during the time of the forester served as a reception room and a study with a piano. The Owl Room - for two people, which will enchant you. The forest wallpaper above your head will give you the best sleep. You will be surrounded by solid ash wood furniture. This room is also situated to the east, so you will be woken up every morning by the rays of sunlight. The room historically served as the bedroom of the forester and his mistress. The original hundred-year-old stove decorates one of the corners of the room. The Fox Room - for 2 people. Even the pleasant materials and cozy atmosphere will not deter you from pulling back the curtain and looking into the forest - if not for the fox that inspired this room. During the forester's era, this was a room for his two daughters. A fully equipped kitchen for your culinary arts - you will find an induction hob, a modern oven, a spacious dishwasher, a sink, a refrigerator and all the necessary dishes. You are on vacation - we want cooking to be not a delay for you, but a joy if you get started. Living room - the most important room in the cottage. The place where everyone always meets. Seven chairs at a large wooden table near the stove, where burning wood crackles. Days begin and end here. The forester's bar - Coffee maker, ice maker, selection of wines, quality rums and other drinks. And always something to eat. Enjoy the evening - This bar opens and closes only according to your mood. Bathroom - Recharge your energy for the next day with water springing just a few steps from the gamekeeper's lodge. White towels always available for your stay. The location of the gamekeeper's lodge invites you to trips to the beautiful nature of the surrounding mountains, you will recharge your batteries and your vacation will become unique. You will see the stars without light smog and sleep like never before. Surroundings: Kamzičí skála with a cross and a view and Suchý vrch - the kingdom of chamois - 4 km. We have a map and other recommendations at the cottage. If you are interested in a bike trip, mushroom picking spots or where to go for a meal, just ask. We will be happy to share our secret tips. We look forward to seeing you at our place.
.
.
.
.
.
.
.
.
.
.
.
.
.
.
.
.
.
.
.
.
.
.
.
.
.
.
.
.
.
.
.
.
.
.
.
.
.
.
.
.
.
.
.
.
.
.
.
.
.












































