Holiday cottages > Czech Republic > Beskydy Mountains > cottage no. 3M-185
Rodinná chalupa - Rožnovská Bečva - Beskydy Beskydy Mountains
„Rodinná chalupa Rožnovská Bečva - polosamota v CHKO Beskydy“
Chalupa - Hluboké
Cottage capacity: 15 persons
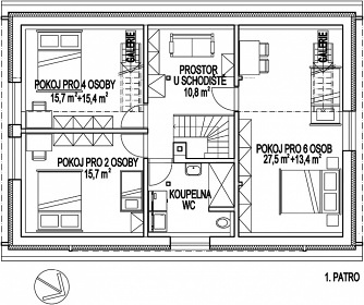
- 4 bedrooms: 1x 6+1, 1x 4, 2x 2
- Bathroom: 2
- Toilet: 3
- Internet: YES
- Pet: NO - not allowed
- The owner of the building (reception): NO
- The landlord speaks: czech, slovak, english, german
Owner: Repáková Gabriela
+420 603 view contacts on owners
Rodinná chalupa Rožnovská Bečva se nachází na polosamotě v CHKO Beskydy. K dispozici je vám rozlehlá zahrada o celkové ploše cca 1600 m2 a zastřešená terasa s možností grilování. Chalupa k pronajmutí poskytuje ubytování pro až 15 osob ve 4 ložnicích. POPIS: Přízemí - pokoj pro 2osoby. 1. patro - pokoj pro 2 osoby, pokoj pro 4 osoby s galerií a pokoj pro 5 až 6 osob s galerií. Možnost doplnění 1 dětské postýlky a 1 přistýlky. Vybavení kuchyně - lednice, elektrický sporák, trouba, mikrovlnná trouba, myčka, rychlovarná konvice, kávovar, ponorný mixér, toustovač. Sociální zařízení: V přízemí objektu je koupelna s toaletou + další samostatné WC, v 1. patře další koupelna s toaletou. Koupelny jsou vybaveny sprchovým koutem. Vytápění chalupy tepelným čerpadlem (v přízemí podlahové vytápění a v patře radiátory). Další vybavení: Televize, internet, knihovna a stolní hry. Asfaltová cesta k objektu je celoročně přístupná. V zimě však doporučujeme počítat s použitím sněhových řetězů. Parkování přímo u objektu pro 5 aut. Chalupa se nachází na turistické trase a cyklotrase směrem na Kotlovou. V místě provozujeme lukostřelecký 3D parkur. Vstup na parkur je zpoplatněn a povolen pouze majitelům lukostřelecké licence. V okolí: Doporučujeme výstup na Pustevny a stezku v oblacích Valaška. Směrem na východ si lze vystoupat na 1207 metrů vysokou horu Čertův mlýn. Západně se po hřebeni dostanete okolo sochy Radegasta na posvátnou horu Radhošť. Na vrcholu je několik zajímavých míst, jako například Kaple sv. Cyrila a Metoděje, sousoší obou věrozvěstů, hotel Radegast, kde můžete ochutnat valašské speciality. Možnosti koupání v okolí: přehrada Horní Bečva, koupaliště biotop Bečva, koupaliště Hutisko-Solanec, koupaliště a Vodní svět Velké Karlovice. Těšíme se na Vás u nás.
.
.
.
.
.
.
.
.
.
.
.
.
.
.
.
.
.
.
.
.
.
.
.
.












































