Holiday cottages > Slovakia > Low Tatras and central Slovakia > hut no. 3S-089
Wellness chata - Nízké Tatry - Bystrianská jeskyně Low Tatras and central Slovakia
„Wellness cootage - Mýto pod Ďumbierom - Finnish sauna and whirlpool.“
Chata V - Mýto pod Ďumbierom
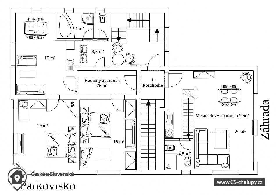
Hut capacity: 22 persons
- 6 bedrooms: 1x 4+2, 1x 3+1, 2x 3, 1x 2+2, 1x 2
- Bathroom: 7
- Toilet: 8
- Internet: YES
- Pet: NO - not allowed
- The owner of the building (reception): NO
- The landlord speaks: czech, slovak, english
Owner: Jorčík Michal Ing.
+421 907 view contacts on owners
Wellness Horská Vílenka - Mýto pod Ďumbierom - Finnish sauna and whirlpool. We offer comfortable cottages for rent for up to 24 people. For most groups and families, the layout and layout of the rooms is very important. Therefore, we have adapted the overall space to groups with different composition, multi-generational families and companies with different requirements for comfort and privacy. In most cases, we rent the building as a whole and the following accommodation units are available to you: two 2-bed rooms, one 3-bed room, one 2-bed room with 2 extra beds and wheelchair access, a spacious 7-bed family apartment and a 6-bed maisonette bed apartment. You can spend time together in a large common room with a bar. The kitchen is equipped with an electric stove with an oven, a fridge with a freezer, a microwave oven, a kettle and a dishwasher. Mothers will also be pleased with the children's corner, which is equipped with toys and a separate TV. Children can thus play undisturbed or watch fairy tales. The entrance to the corner is directly from the kitchen. After an active day, relax in our wellness center with a Finnish sauna. It also includes a relaxation room with salt walls. A tiled stove and relaxing music create a pleasant atmosphere. We can also provide you with massage services. Within the accommodation you will also find a ski storage room with ski boot dryers. Each accommodation unit is equipped with its own television and bathroom with shower and toilet. In the 4-bed room, you will also find a kitchenette, which, thanks to the stove and refrigerator, will serve you to prepare breakfast or a quick dinner. The family apartment has two bedrooms. One 3-bed room with a double bed, a fixed bed and a fireplace stove, the other 3-bed room with a double bed, a fixed bed and an extra bed in the form of a sofa. In the family apartment, you can also use the fully equipped kitchen, where you will find a ceramic hob, electric oven, microwave oven, kettle and fridge with freezer. There is also a living room with a TV, a sofa and a dining area. The maisonette apartment is beautifully sunny and a peaceful sleep can be found here in the bedroom, where there is a double bed and two single beds. From the bedroom you go down the stairs to the living area. The sofa easily turns into an extra bed for two people at night. There is also a dining area. We have provided free Wi-Fi internet connection throughout the building. We have 4 cots and two high dining chairs available, which we will be happy to prepare for you upon agreement. Mýto pod Ďumbierom is a popular tourist and recreation area. You can easily pack your bike, high-altitude hiking boots or even Nordic walking poles and explore the Low Tatras. Together with the children, you can visit the Bystrian Cave or the Cave of Dead Bats, climb the ropes in Tarzánia or visit the Forest Open-Air Museum in Vydrov.
.
.
.
.
.
.
.
.
.
.
.
.
.
.
.
.
.
.
.
.
.
.
.
.
.
.
.
.
.
.
.
.
.
.
.
.
.
.
.
.
.
.
.
.
.
.
.
.
.












































